BUILT. READY. OPERATIONAL.

Key highlights

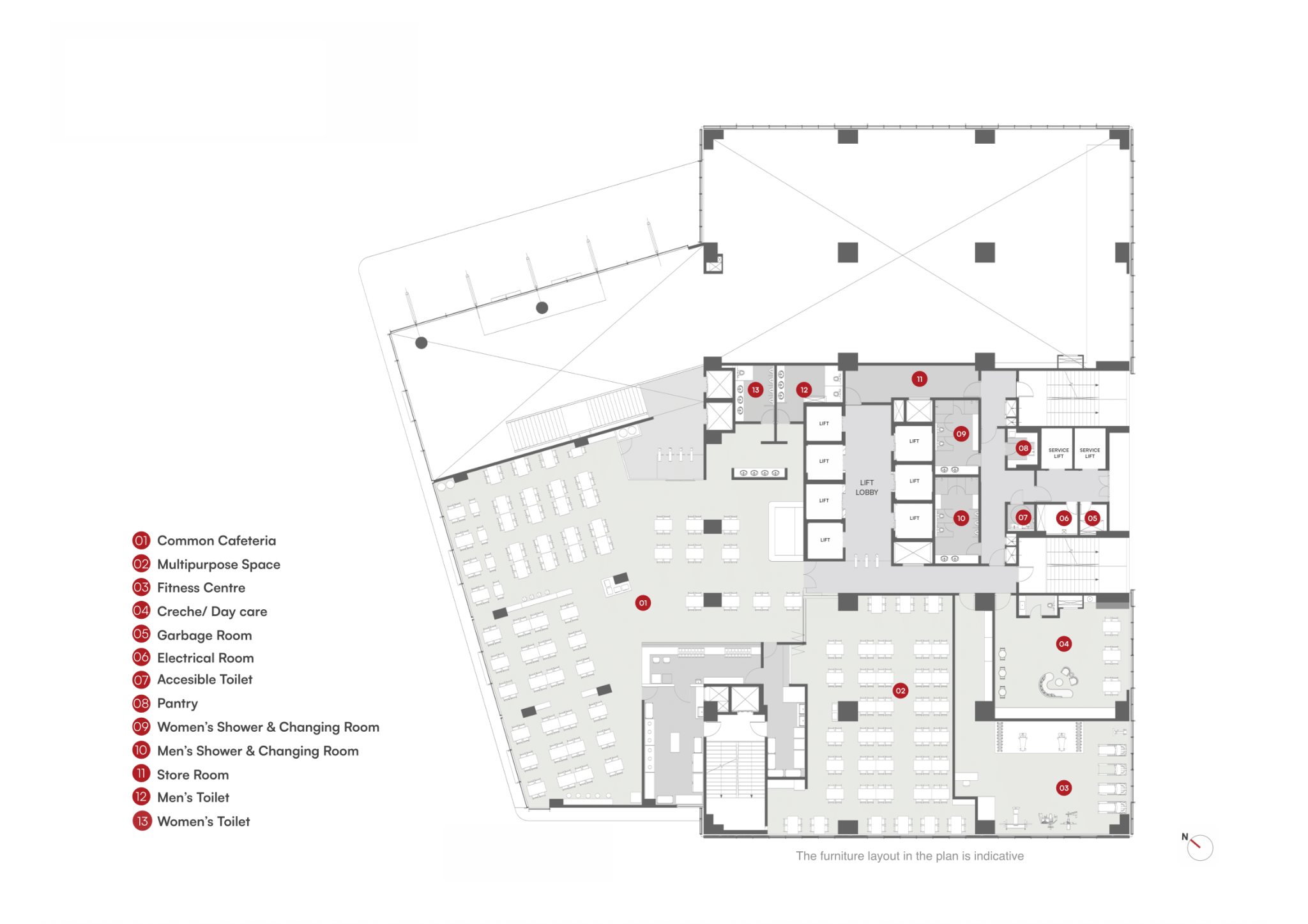
Designed for efficiency

Gross Development Area:
5,35,222 sq ft
Typical Floor Area:
16,250 sq ft
Building Height:
95 meters
Typical Floor Height:
4.2 meters
Number of Floors:
G + 20
Construction:
RCC frame with AAC masonry walls
Green Certification:
IGBC Platinum pre-certified for design
Vertical Mobility:
9 passenger elevators and 3 service elevators
Centralised Core:
Central core planning allowing natural light to reach across the floor plate.
Network Access:
Access to more than 15 internet service providers enabling seamless connectivity.
Power Backup:
Backup power provided for essential building loads.
Server Provision:
Dedicated slab-reinforced zones designed for server installations.
Design vision & architecture

Crafting spaces with purpose

FLEXONE is thoughtfully designed to deliver a conducive working environment.

We prioritize well-being by supporting work-life balance and providing access to thoughtfully curated amenities and restaurants, ensuring an exciting and inspiring workspace for everyone.

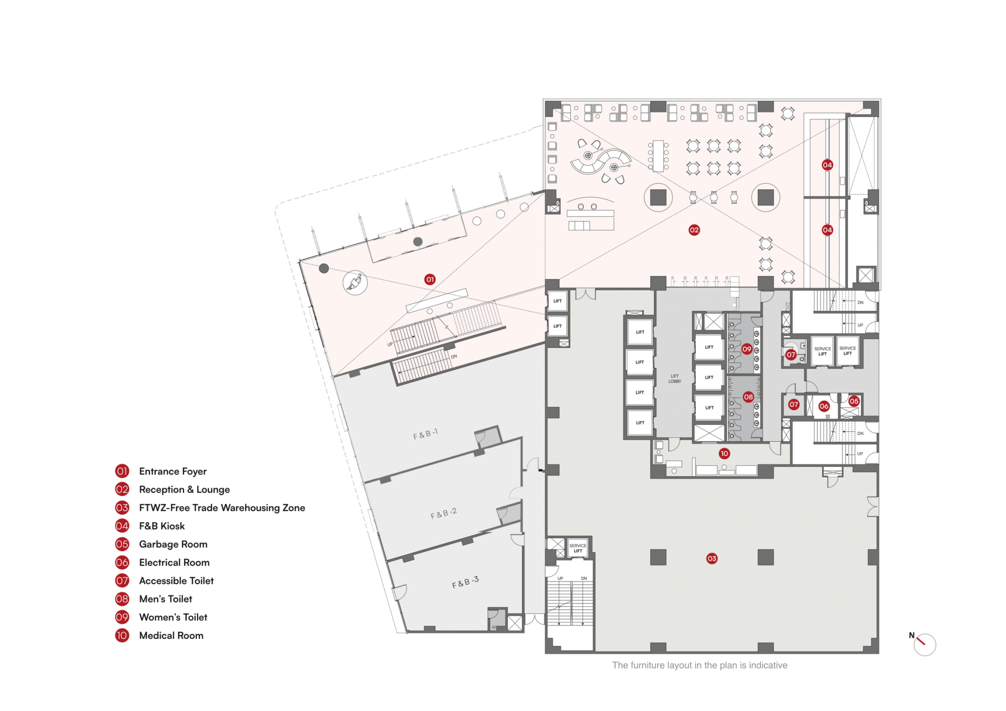
Arrival & lobby

A first impression that stays with you

Designed with elegance and comfort, our double-height lobby is filled with great natural light and adorned with premium finishes.
You can grab a quick bite at our lobby cafe or host informal meetings – the lobby is designed to blend functionality and contemporary look, ensuring a memorable experience for you and your guests.

Sustainability

Leading with sustainability

Green Certification

The building will strive for best practices in sustainability, achieving IGBC Platinum certification for Design. It will be optimised for operational efficiency and designed to achieve energy efficiency parameters.

Facade

The high-performance façade will have low-E glazing giving a contemporary look to the building as well ensuring low thermal absorption. Every floor has operable windows allowing tenants the ability to allow for fresh air.

HVAC

The District Cooling Plant at GIFT Infrastructure level will supply chilled water throughout the building. Each floor will have metered tap off points for chilled water for each floor/individual office

Energy Savings

The building will optimise for energy efficiency with a higher energy saving compared to traditional buildings. Additionally, EV charging provisions both four-wheelers and two-wheelers, supporting eco-sensitive transportation options.

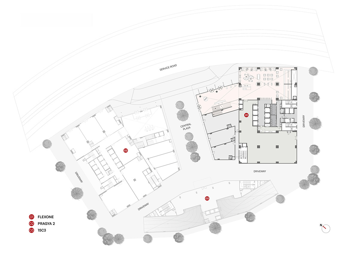
Plan

Project Team

The team behind FLEXONE

CONSULTANT

Architect

Studio ARA

Structural Consultant

N.K Shah

MEPF Consultant

ATOMEP

Facade Consultant

FDF Consultancy Private Limited

Lighting Consultant

Zion Design

Green Building Consultancy

Savvy Greens

Interior Designer

Reema Pathak Designs

CONTRACTORS

Civil Contractors

Hitech Projects Private Limited

Facade Contractor

HIFAB Aluminium Private Limited